HARBORNE, WEST MIDLANDS
“…The extension has transformed our Victorian terrace…”
- Victorian Terrace
- Full Planning Application
- Inspired by lots of greenery, wicker chairs and 1940s palm houses
- Finished with a 5* review from our clients
We finally made it back to take some final photographs of this project that we shared early images of during lockdown. The beautiful fittings and final touches really bring the project together to create a glorious, peaceful, serene space.
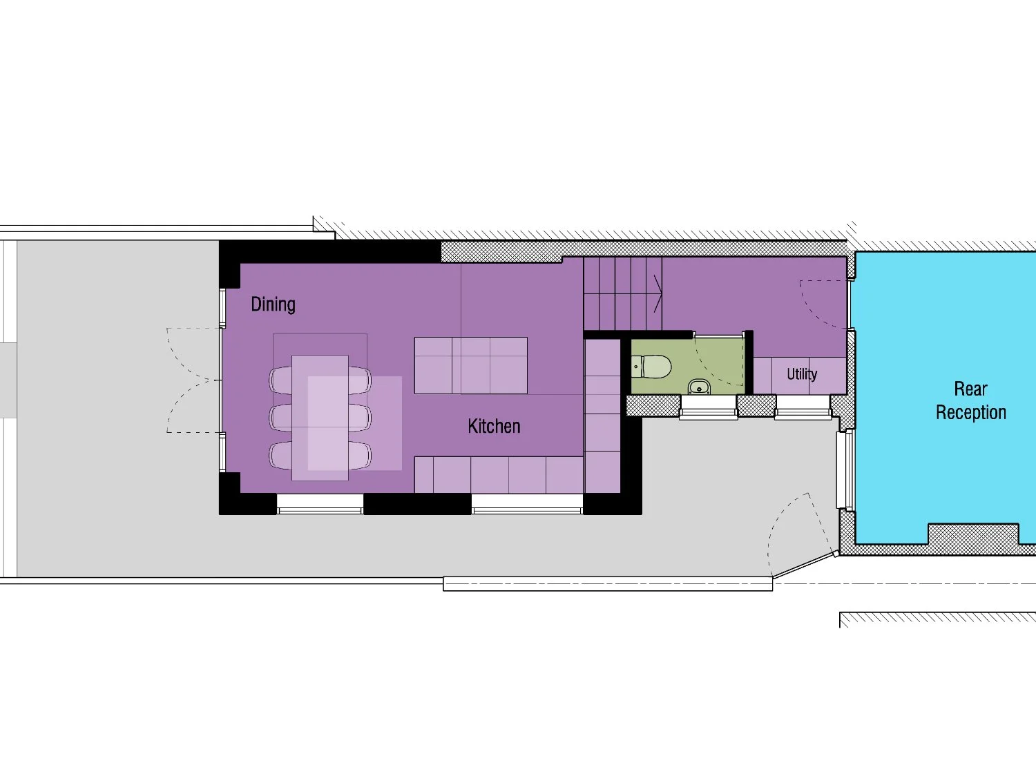
From the very first site visit, a glimpse of the long garden dropping away from the back of the house and a long chat with the owners of this beautiful terraced property in Harborne, it was clear that there was the opportunity to do something a little out of the ordinary. The owners were looking for a kitchen extension, with lots of light, and being keen gardeners, a connection to the outdoors. Our conversations centred around a classically proportioned industrial aesthetic and lush planting, creating a space that could be verdant with greenery inside and outside. The significant change in level gave us the opportunity to create a sunken garden room, slipped in underneath the existing rear wing of the house, creating a private sanctuary for cooking, eating and entertaining. We retained the pitched roof of the old kitchen, glazing the back wall of the old kitchen to create a spectacular triangular window pouring light down the staircase and in to the new kitchen, and giving dramatic glimpses of the garden from the front door. The staircase drops down through this exciting double height space with daylight pouring in and around to the kitchen dining area. A soft and serene space that over time will integrate gently in to the garden and planting.
From a moment of inspiration on that visit to the finished space, we love it when a plan comes together…
Give us a call on 0121 270 7227 to discuss your project.



























